322 Cosby Subd Road Mindemoya, Ontario P0P 1S0
$1,575,000
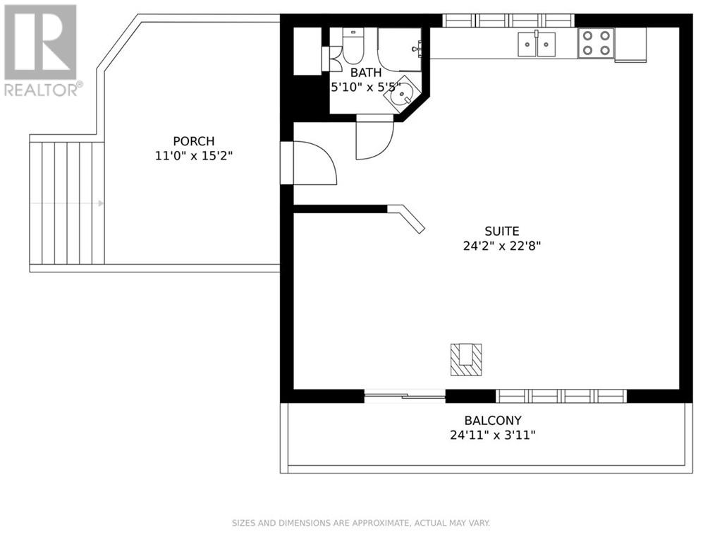
Welcome to peace and serenity! Located on the beautiful shores of Lake Manitou, ""Green Bay Lodge"" offers the epitome of lakeside luxury living. Boasting breathtaking Easterly views with gorgeous sunrises, this property beckons outdoor enthusiasts with perennial gardens and protected harbour. Immerse yourself in the tranquility of nature while enjoying modern amenities within this expansive retreat. This large, 13 acre property is meticulously crafted for comfort and style. The owners' living space seamlessly blends elegance and warmth, inviting you to unwind by the wood stove or gather with loved ones in the kitchen. There are five rental units at the lodge. Three units are under the main residence. There is a separate building with a large studio and a king suite under it. The entire operation comes turn key. Step outside onto the sprawling screened deck to savor morning coffee overlooking the lake or head out to the backyard to host unforgettable evenings under the starlit sky at the fire pit. The private dock and harbour extends an invitation for boating adventures, fishing escapades, or simply lazing by the lake, forgetting any memories of busy city life. A true haven for year round relaxation and entertainment, this waterfront lodge, or family compound is a rare gem, offering a balance of work from home lifestyle amidst nature's stunning canvas. Discover your slice of paradise where the allure of ""Green Bay Lodge"" could be your reality! (id:44560)
Property Details
| MLS® Number | 2123161 |
| Property Type | Single Family |
| Equipment Type | Propane Tank |
| Rental Equipment Type | Propane Tank |
| Structure | Shed |
| Water Front Name | Lake Manitou |
| Water Front Type | Waterfront |
Building
| Bathroom Total | 7 |
| Bedrooms Total | 7 |
| Architectural Style | 2 Level |
| Basement Type | Full |
| Exterior Finish | Wood Siding |
| Flooring Type | Laminate |
| Heating Type | Wood Stove, Baseboard Heaters |
| Roof Material | Asphalt Shingle,metal |
| Roof Style | Unknown,unknown |
| Type | House |
Land
| Access Type | Year-round Access |
| Acreage | Yes |
| Sewer | Septic System |
| Size Total Text | 10 - 50 Acres |
| Zoning Description | R |
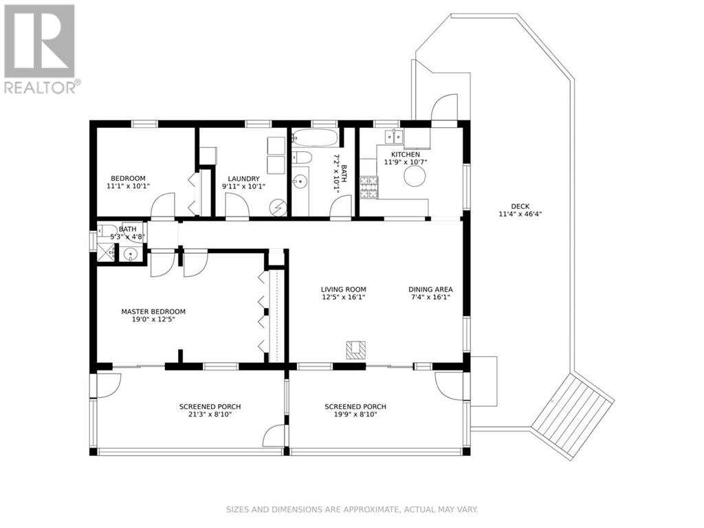
Rooms
| Level | Type | Length | Width | Dimensions |
|---|---|---|---|---|
| Main Level | Living Room | 16.1 x 19.9 | ||
| Main Level | Primary Bedroom | 19 x 12.5 | ||
| Main Level | Bedroom | 10.1 x 11.1 | ||
| Main Level | Laundry Room | 10.1 x 9.11 | ||
| Main Level | Bathroom | 10.1 x 7.2 | ||
| Main Level | Kitchen | 11.9 x 10.7 |
https://www.realtor.ca/real-estate/28529251/322-cosby-subd-road-mindemoya
Interested?
Contact us for more information





























































